Nyhetsfeed
Byggeblogg
Galleri
Beliggenhet
Soldiagram
Kontakt
Leilighetsvelger
Nyhetsfeed
Byggeblogg
Galleri
Beliggenhet
Kontakt
Leilighetsvelger
Trinnvelger
/
Leilighetsvelger Tangen Torv
Leilighetsvelger FYR
/
Etasje 2
Etasje 3
Etasje 4
Etasje 5
Etasje 6
Etasje 7
Etasje 8
Etasje 9
Etasje 10/11
Etasje 1
Etasje 2
Etasje 2
Etasje 3
Etasje 3
Etasje 4
Etasje 4
Etasje 5
Etasje 5
Etasje 6
Etasje 6
Etasje 7
Etasje 8
/
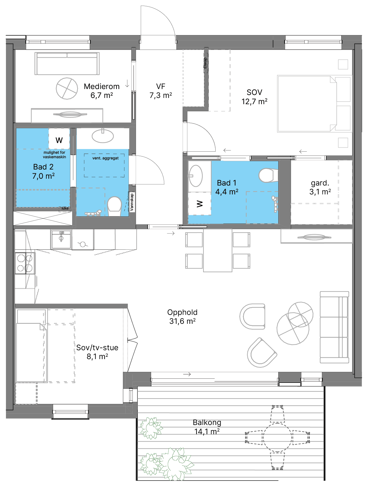
T25 H0305
Klikk på bildet for fullskjerm
Se flere bilder:
No items found.
Bygg 1 •
Etasje
3
/
/
Toppleilighet
T25 H0305
BRA-I
88 m²
BRA-E
5 m²
BRA-B
(Innglasset balkong)
Sum BRA
93 m²
Balkong
14 m²
Pris
kr 7 490 000
Mulighet for kjøp av bod i kjeller.
Se bilder fra leilighet
Se bilder fra leilighet
Se bilder fra leilighet
Se bilder fra leilighet
Se bilder fra leilighet
Se bilder fra leilighet
Se bilder fra leilighet
Se bilder fra leilighet
Se bilder fra leilighet
Se bilder fra leilighet
Se bilder fra leilighet
Se bilder fra leilighet
Se bilder fra leilighet
Se bilder fra leilighet
Se bilder fra leilighet
Se bilder fra leilighet
Se bilder fra leilighet
Se bilder fra leilighet
Se bilder fra leilighet
Se bilder fra leilighet
Se bilder fra leilighet
No items found.
Jeg er interessert!
Bygg 2 •
Etasje
3
/
/
Toppleilighet
T25 H0305
BRA-I
88 m²
BRA-E
5 m²
BRA-B
(Innglasset balkong)
(Innglasset terrasse)
Sum BRA
93 m²
Balkong
Terrasse
14 m²
Pris
kr 7 490 000
Mulighet for kjøp av p-plass og bod i kjeller.
Se bilder fra leilighet
Jeg er interessert!
FYR •
Etasje
3
/
T25 H0305
BRA-I
88 m²
BRA-E
5 m²
Sum BRA
93 m²
Balkong
14 m²
Pris
kr 7 490 000
Mulighet for kjøp av bod i kjeller.
Mulighet for kjøp av bod i kjeller.
Mulig soverom er tilgjengelig som tilvalg.
Se bilder fra leilighet
Se bilder fra leilighet
Se bilder fra leilighet
Se bilder fra leilighet
Se bilder fra leilighet
Se bilder fra leilighet
Se bilder fra leilighet
Se bilder fra leilighet
Se bilder fra leilighet
Se bilder fra leilighet
Se bilder fra leilighet
Se bilder fra leilighet
Se bilder fra leilighet
Se bilder fra leilighet
Se bilder fra leilighet
Se bilder fra leilighet
Se bilder fra leilighet
Se bilder fra leilighet
Se bilder fra leilighet
Se bilder fra leilighet
Se bilder fra leilighet
No items found.
Jeg er interessert!
Er du interessert?
Vi kontakter deg!
Jeg godkjenner at informasjonen min blir lagret og at megler kan ta kontakt med meg med relevant informasjon om prosjektet.
Takk for din interesse – du blir kontaktet av megler!
Oj, noe gikk galt! Prøv igjen senere, eller ta kontakt direkte.