
![]()
Klikk på bildet for fullskjerm
Bygg 1 •
Etasje
9
/
/
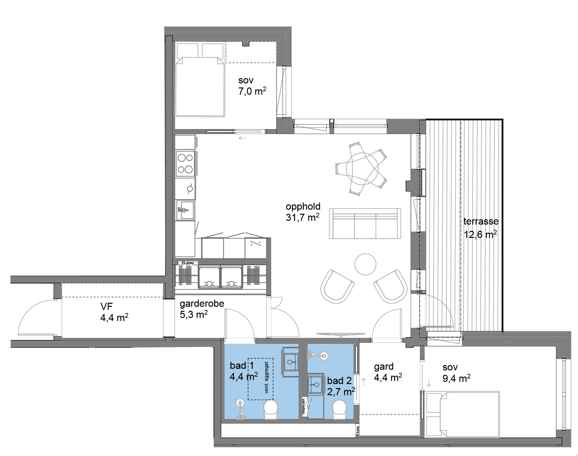
Toppleilighet
T23 H0902
BRA-B
(Innglasset balkong)
Mulighet for kjøp av bod i kjeller.
Jeg er interessert!T23 H0902
Mulighet for kjøp av bod i kjeller.
Mulig soverom er tilgjengelig som tilvalg.
Jeg er interessert!